LARGE HOUSE FOR SALE IN HOTON GOWER SWANSEA SA3 1LB,WITH PLANNING PERMISSION FOR 4 DETACHED EXECUTIVE HOMES WITH SEA VIEWS.
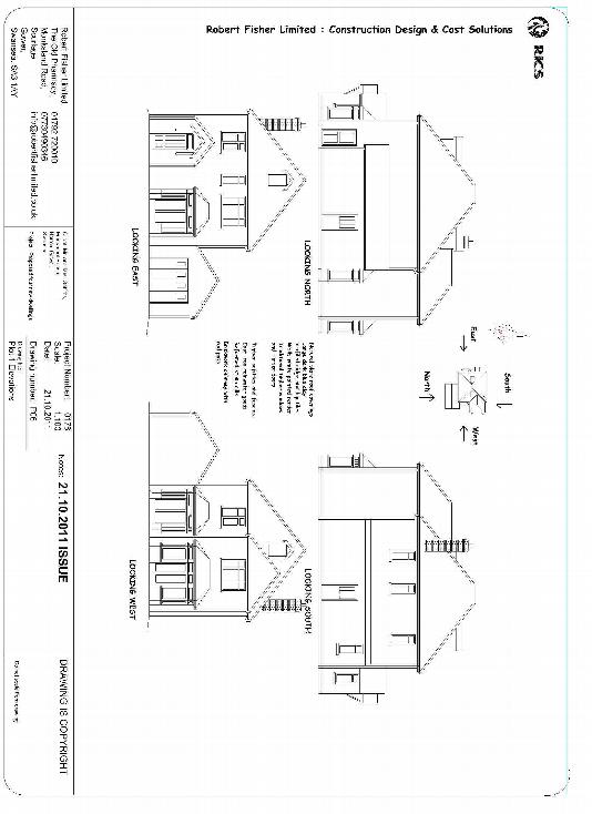
Large house in need of substantial modernisation with the benifit of full detailed planning permission for 4 detached 4 bedroom executive homes in large plots.
Currently open to sealed bid offers with a guide price in the region of £1,200,000.00
This site is located close to the beautiful beaches of Horton and Port Eynon in the Gower's ANOB, Brittains first Area of Natural Outstanding Beauty.
This plot is situated to the west side of this small friendly village, offering a location of privacy and peace being accessed along a small private drive.
This is probably the very last plot to go on sale in Gower with full planning permission for four executive 4 bedroom detached houses with sea views being this close to the beach.
Horton is approximately 13 miles from Swansea and to the M4 Motorway.
For full details go to the City and County of Swansea's web site using this link www.swansea.gov.uk, go to Environment and then to planning. When on the Planning site web page look under Further Information and click on 'Application Search', when the search page appears enter the following planning refence number 2010/1375
SITE LOCATION, LAYOUT AND PROPERTY




